Homepage
Activities
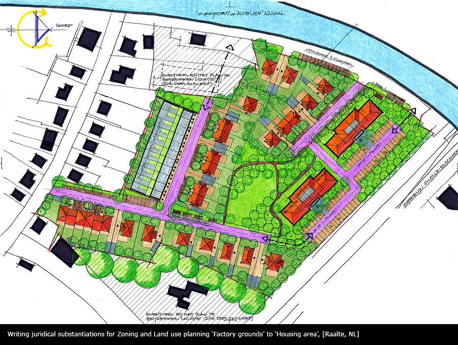
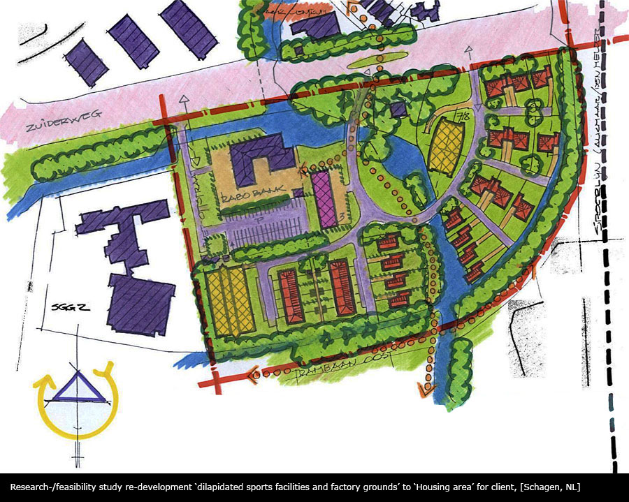
Projects
Curriculum Vitae
The New Rules
Contact
Dutch Version
Procitta Projecten • Van Alkemadelaan 1136 • 2597 BL The Hague • info@procitta-projecten.nl
Phone Netherlands: +31 (0)70 354 12 50 / +31 (0)6 515 444 99 • Tanzania: +255 (0)788 48 70 60